Vés al contingut principal

Configuració de les galetes

Fem servir galetes per assegurar les funcionalitats bàsiques del lloc web i per a millorar la teva experiència en línia. Pots configurar i acceptar l'ús de galetes, i modificar les teves opcions de consentiment en qualsevol moment.

Essencials

Preferències

Analítiques i estadístiques

Màrqueting

Adequació d'un local per a Protecció Civil

Avatar: Proposta oficial Proposta oficial

Adequació d'un local per a Protecció Civil

PROPOSTA

Adequació d'un local per a l'entitat

PRESSUPOST

75.000€

OBJECTIUS

Disposar d'un espai al municipi per a l'emmagatzematge del material de l'entitat per tal de poder actuar amb rapidesa davant d'una emergència.

UBICACIÓ

Antic local de la Creu Roja a Torroella de Baix

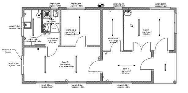
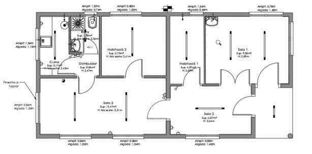
Plànol de l'espai
Descarregar fitxer
Comentari

Confirmar

Si us plau, inicia la sessió

La contrasenya és massa curta.

Compartir