Saltar al contenido principal

Configuración de cookies

Utilizamos cookies para asegurar las funcionalidades básicas del sitio web y para mejorar tu experiencia en línea. Puedes configurar y aceptar el uso de las cookies, y modificar tus opciones de consentimiento en cualquier momento.

Esenciales

Preferencias

Analíticas y estadísticas

Marketing

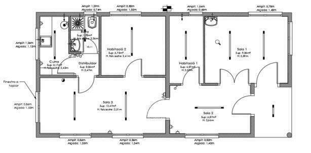
Adequació d'un local per a Protecció Civil

Avatar: Propuesta oficial Propuesta oficial

Adequació d'un local per a Protecció Civil

PROPOSTA

Adequació d'un local per a l'entitat

PRESSUPOST

75.000€

OBJECTIUS

Disposar d'un espai al municipi per a l'emmagatzematge del material de l'entitat per tal de poder actuar amb rapidesa davant d'una emergència.

UBICACIÓ

Antic local de la Creu Roja a Torroella de Baix

Plànol de l'espai
Descargar archivo
Comentario

Confirmar

Por favor, inicia la sesión

La contraseña es demasiado corta.

Compartir